Palestra Lavinci _ Gubbio
FITNESS
- COMMITTENTE:Sporttop srl
- LUOGO:Gubbio (PG)
- ANNO:2014
- SERVIZI:
Progettazione preliminare
Progettazione esecutiva
Direzione lavori
Allestire una palestra con una identità definita e riconoscibile, capace di accogliere un elevato numero di utenti contemporaneamente, inserendosi in un contesto definito e architettonicamente “finito” limitando al minimo indispensabile gli interventi di trasformazione del locale e di adeguamento impiantistico.
Allestire una palestra con una identità definita e riconoscibile, capace di accogliere un elevato numero di utenti contemporaneamente, inserendosi in un contesto definito e architettonicamente “finito” limitando al minimo indispensabile gli interventi di trasformazione del locale e di adeguamento impiantistico.
Questo il tema progettuale delle palestre “Lavinci Fitness” che si rivolgono ad un pubblico ampio offrendo un buon servizio a costi accessibili.
Il tema è stato affrontato realizzando un intervento “minimo”, tutto concentrato sul disegno degli arredi che assolvono al compito di dividere gli spazi, contenere, accogliere gli utenti, caratterizzare gli spazi.
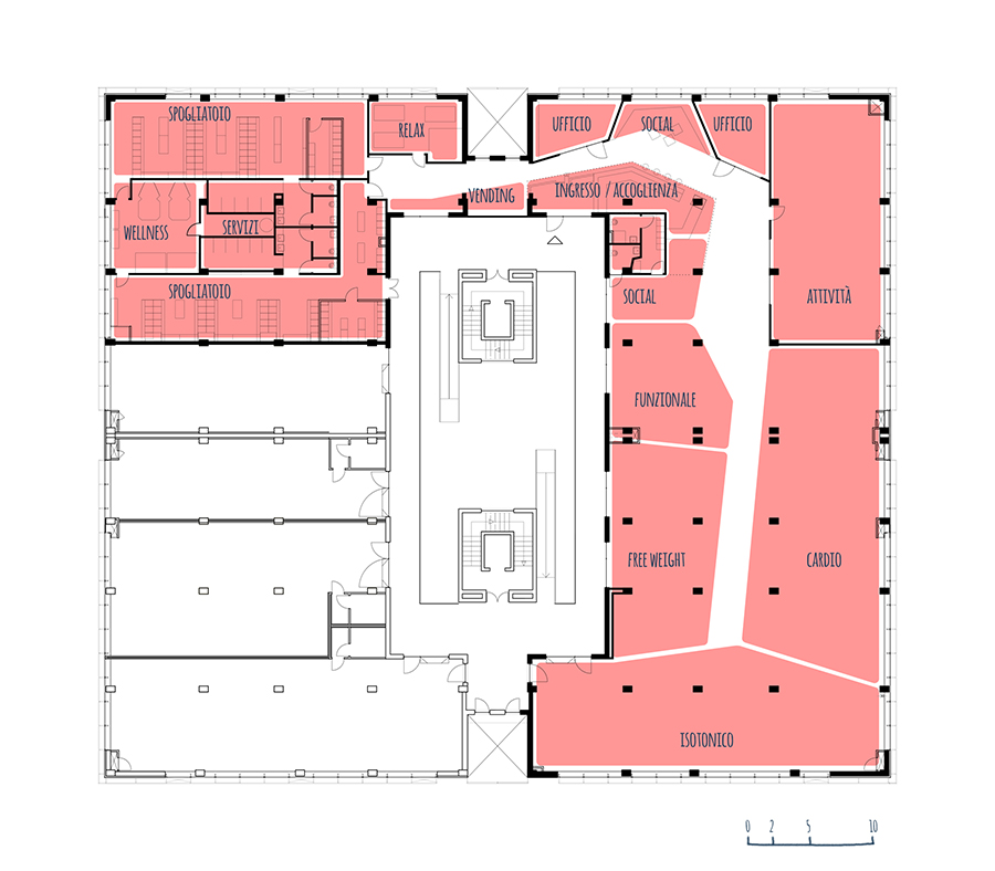
La palestra di Gubbio si sviluppa per una superficie di 1250 metri quadrati su un unico livello al piano primo di un centro commerciale.
Baricentro del progetto è il grande banco posto all'ingresso che ospita le funzioni di reception, bar e area personal trainer.
Come eccezione formale si inserisce in modo dirompente, contagiando gli spazi che gli sono immediatamente vicini, in una pianta rigida dettata dalla fitta maglia di pilastri.
- link to profilo

Marco Paleco
progettazione preliminare, progettazione esecutiva, direzione lavori
- link to profilo

Marilù Iaquaniello
progettazione esecutiva, direzione lavori















